GALLERY
PROPERTY DETAIL
Key Details
Sold Price $371,25014.2%
Property Type Single Family Home
Sub Type Single Family Residence
Listing Status Sold
Purchase Type For Sale
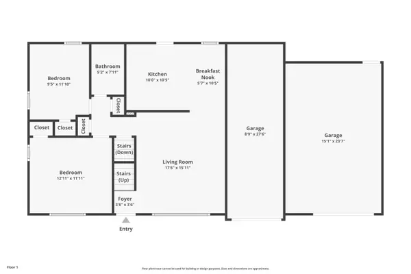
Square Footage 1, 519 sqft
Price per Sqft $244
Municipality Palmer Township
MLS Listing ID PM-133248
Sold Date 07/08/25
Style Cape Cod
Bedrooms 4
Full Baths 1
HOA Y/N false
Year Built 1950
Annual Tax Amount $4,566
Tax Year 2025
Lot Size 9,888 Sqft
Acres 0.23
Lot Dimensions 0.23
Property Sub-Type Single Family Residence
Source Pocono Mountains Association of REALTORS®
Location
State PA
County Northampton
Area 0.23
Rooms
Basement Full, Partially Finished
Building
Lot Description Corner Lot, Level
Sewer Public Sewer
Water Public
Architectural Style Cape Cod
Structure Type Wood Siding
Interior
Interior Features Eat-in Kitchen, Cathedral Ceiling(s), Vaulted Ceiling(s), Ceiling Fan(s), Radon Mitigation
Heating Hot Water, Oil
Cooling Ceiling Fan(s), Wall Unit(s), Window Unit(s)
Flooring Vinyl
Fireplace No
Laundry Lower Level
Exterior
Parking Features Driveway
View Y/N No
Roof Type Asphalt,Fiberglass,See Remarks
Total Parking Spaces 2
Garage Yes
Schools
School District Easton Area
Others
Tax ID 5065-06-5542-7829
Acceptable Financing Cash, Conventional, FHA, VA Loan
Listing Terms Cash, Conventional, FHA, VA Loan
Special Listing Condition Standard
SIMILAR HOMES FOR SALE
Check for similar Single Family Homes at price around $371,250 in Easton,PA

Pending
$414,250
1819 Chianti PL, Easton, PA 18045
Listed by Howard Hanna TheFrederickGroup3 Beds 3 Baths 1,903 SqFt
Active
$360,000
3406 Church RD, Bethlehem Twp, PA 18045
Listed by Keller Williams Northampton3 Beds 2 Baths 1,946 SqFt
Pending
$314,900
2716 Division ST, Palmer Twp, PA 18045
Listed by Win-Win Realty, Inc.3 Beds 1 Bath 1,250 SqFt
CONTACT









